Land with Complete Town Planning Permits

2,038m² approx land area
1,115m² approx floor area
For Sale Contact Agent

Rutherfords Real Estate and Knight Frank are proud to exclusively present a brand new development opportunity in the Canvas West Estate as it is leading a new channel of growth in Melbourne's enduring West. Framed by established transport networks and increasing population growth, the estate is set to benefit from surrounding upgrades now and well into the future. The West is well connected with its close proximity to the Port of Melbourne, Tullamarine Airport and arterial connections to vital local, state and national roadways. Already a hot spot for the leaders in logistics and warehousing, the region boasts streamlined access to everything your business and workforce need to excel.

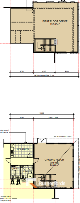
Building Plans Include:
Ground floor office: 78m2
First floor office: 132m2
Warehouse: 795m2
Total build: 1,115m2

Land size: 2,038m2

For more information please contact the exclusive sale agents

Antony Di Censo:
antony@rre.net.au
0481 386 101

Steve Jones:
steve.Jones@au.knightfrank.com
0412 836 105

Disclaimer:
The information contained in the material Rutherfords has supplied (the "information") is for general information purposes only. Rutherfords assume no responsibility for errors, representations, or omissions in the contents of the information.

In no event shall Rutherfords be liable for any special, direct, indirect, consequential, or incidental damages or any damages whatsoever, whether in an action of contract negligence or other torts, arising out of or in connection with the use of the Information or the contents of the information. Rutherfords reserves the right to make additions, deletions or modification to the contents of the information at any time without prior notice.


Location Map

74 Droomer Way Tarneit
Land/Development
For Sale Contact Agent

Inspection times

Please contact our agents to arrange a viewing.

Agents

Antony Di Censo
Antony Di Censo Industrial Specialist - Sales and Leasing
Drew Williams
Drew Williams Industrial Specialist - Director

Property Information

  • Land area approx 2038.00sqm
  • Floor area approx 1115sqm

For more information, contact us today.

83 High St Thomastown VIC 3074
Antony Di Censo
Industrial Specialist - Sales and Leasing
Drew Williams
Industrial Specialist - Director
×

Request More Information

×